Porozmawiaj z nami 7 dni w tygodniu 606 705 388, 692 715 791 lub napisz: biuro@domtodom.pl
| Powierzchnia użytkowa: | 155,70 m2 |
| Powierzchnia całkowita: | 238,90 m2 |
| Powierzchnia zabudowy: | 162,20 m2 |
| Kubatura: | 531,40 m3 |
| Wysokość budynku: | 7,56 m |
| Wysokość do okapu: | b.d. |
Ściany zewnętrzne: gazobeton, ceramika, silikaty
Strop: betonowy gęstożebrowy
Schody: zabiegowe
Ścianka kolankowa: 77 cm
Dach: wielospadowy, nachylenie 35°, pokrycie z dachówki, blachodachówki
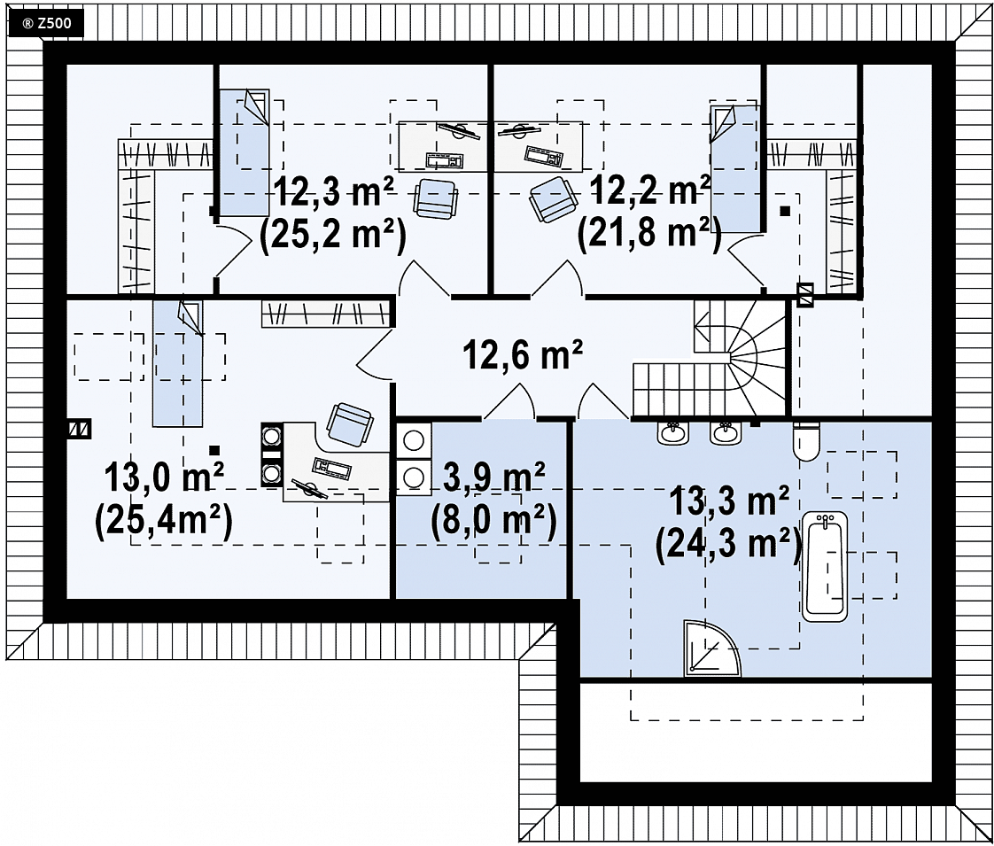
Z173 to wygodny projekt domu z poddaszem o przyjemnym charakterze. Zewnętrze ściany zdobią naturalne, drewniane elementy elewacji. Popielata dachówka doskonale komponuje się z brązową barwą stolarki okiennej. Prosta konstrukcja bryły podkreśla współczesny styl domu.W projekcie przewidziany jest także spory garaż dwustanowiskowy. Wnętrze domu jest przestronne i funkcjonalne. Jasny salon subtelnie połączony jest z jadalnią. Skrajnie usytuowany kominek zapewnia perfekcyjne ogrzanie wnętrza domu. Otwarta kompozycja kuchni optycznie powiększa całe pomieszczenie. Podręczna spiżarka to idealne miejsce do przechowywania większych zakupów i domowych przetworów. Funkcjonalny gabinet do pracy, może z powodzeniem pełnić rolę miłego pokoju gościnnego. Warto zwrócić uwagę na komfortową sypialnię z osobistą łazienką. Na piętrze znajdują się trzy przestronne sypialnie z prywatnymi garderobami. Komfortowa łazienka oddzielona jest od pralni osobnym pomieszczeniem.

Dbamy o najlepszą ofertę dla naszych Inwestorów.

W kilka chwil wybierzesz z nami swój wymarzony dom.

Pomożemy Ci we wszystkich formalnościach, dostosujemy projekt do Twoich indywidualnych potrzeb.

Projekt wymarzonego domu może być u Ciebie nawet następnego dnia po zamówieniu.