Porozmawiaj z nami 7 dni w tygodniu 606 705 388, 692 715 791 lub napisz: biuro@domtodom.pl
| Powierzchnia użytkowa: | 106,80 m2 |
| Powierzchnia całkowita: | 150,30 m2 |
| Powierzchnia zabudowy: | 111,10 m2 |
| Kubatura: | 405,05 m3 |
| Wysokość budynku: | 7,79 m |
| Wysokość do okapu: | b.d. |
Ściany zewnętrzne: gazobeton, ceramika, silikaty
Strop: betonowy gęstożebrowy
Schody: dwubiegowe, wachlarzowe
Ścianka kolankowa: 86 cm
Dach: dwuspadowy, nachylenie 38°, pokrycie z dachówki, blachodachówki
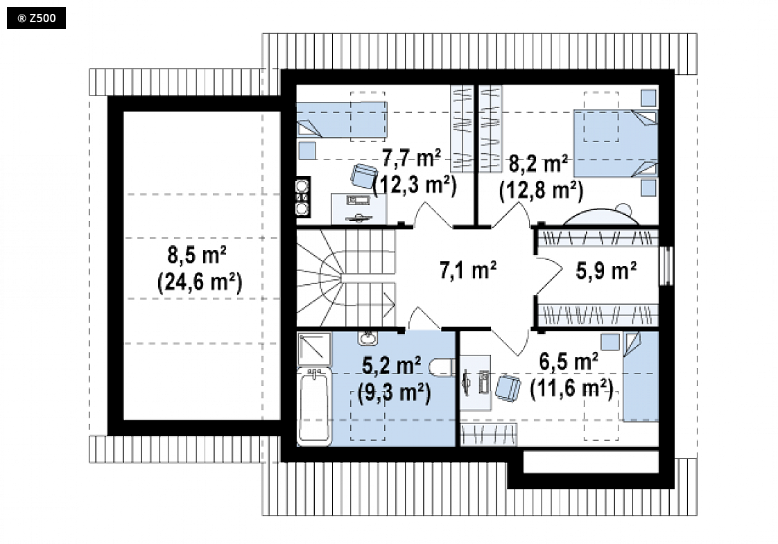
Z 114 to przytulny i komfortowy dom z garażem. Modna, ciemna dachówka świetnie podkreśla jego nowoczesny charakter, a drewniane elementy elewacji dodają uroku. Znaczna część parteru to jasny, przestronny salon. Można w nim wyznaczyć trzy osobne strefy do wypoczynku: wygodną jadalnię, komfortową część telewizyjną oraz romantyczny zakątek z kominkiem. Salon posiada bezpośrednie wyjście tarasowe, z którego podziwiać można kwitnący ogród. Funkcjonalnie zaplanowana kuchnia wyposażona została w podręczny schowek. Na parterze jest także pojemna garderoba z bezpośrednim przejściem do garażu. Na piętrze znajdują się trzy wygodne sypialnie oraz duża ogólnodostępna łazienka. Jest tu również spora garderoba z miejscem na ubrania wszystkich domowników. Przestrzeń nad garażem to dodatkowe miejsce do dowolnego wykorzystania. Z114 to dom niezwykle uroczy i przyjazny w wyglądzie. Świetnie nadaje się zarówno dla młodych ludzi, jak i dla rodziny z dziećmi.

Dbamy o najlepszą ofertę dla naszych Inwestorów.

W kilka chwil wybierzesz z nami swój wymarzony dom.

Pomożemy Ci we wszystkich formalnościach, dostosujemy projekt do Twoich indywidualnych potrzeb.

Projekt wymarzonego domu może być u Ciebie nawet następnego dnia po zamówieniu.