Porozmawiaj z nami 7 dni w tygodniu 606 705 388, 692 715 791 lub napisz: biuro@domtodom.pl
| Powierzchnia użytkowa: | 96,20 m2 |
| Powierzchnia całkowita: | 118,50 m2 |
| Powierzchnia zabudowy: | 77,90 m2 |
| Kubatura: | 271,47 m3 |
| Wysokość budynku: | 7,35 m |
| Wysokość do okapu: | b.d. |
Ściany zewnętrzne: gazobeton, ceramika, silikaty
Strop: betonowy gęstożebrowy
Schody: dwubiegowe, wachlarzowe
Ścianka kolankowa: 77 cm
Dach: dwuspadowy, nachylenie 40°, pokrycie z dachówki, blachodachówki
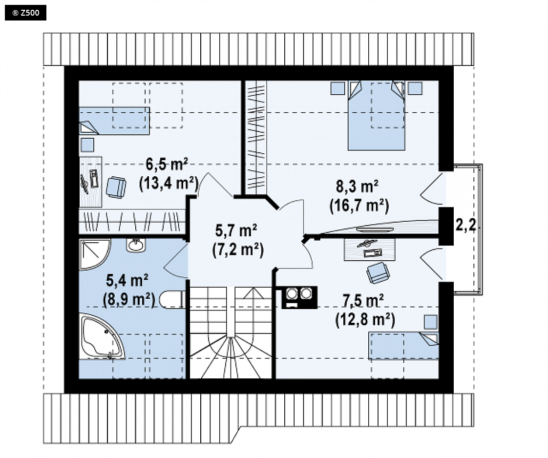
Projekt domu z101 to projekt funkcjonalny i tani w budowie ze względu na prostą konstrukcje dachu. Optymalny kąt nachylenia dachu oraz wyższa ścianka kolankowa pozwalają zagospodarować poddasze na 3 pokoje oraz wygodną łazienkę. Kolejnym atutem są gabaryty domu (pow . 120m2). Funkcjonale rozwiązanie układu pomieszczeń sprawia, że każdy m2, jest optymalnie wykorzystany. Dom ma wszystko na swoim miejscu: sień z miejscem na pojemną szafę a nawet garderobę, wc z miejscem na pralkę i natrysk, dużą spiżarkę z dostępem z kuchni oraz uroczy wykusz na jadalnię. Pomieszczenia gospodarcze zlokalizowane jest w optymalnym miejscu aby dom miał jeden komin dzięki temu ograniczamy koszty budowy. Na poddaszu mamy do dyspozycji trzy pokoje, które mają jedną wspólną łazienkę. Jest możliwość wykonania balkonu łączącego dwa pokoje.

Dbamy o najlepszą ofertę dla naszych Inwestorów.

W kilka chwil wybierzesz z nami swój wymarzony dom.

Pomożemy Ci we wszystkich formalnościach, dostosujemy projekt do Twoich indywidualnych potrzeb.

Projekt wymarzonego domu może być u Ciebie nawet następnego dnia po zamówieniu.