Porozmawiaj z nami 7 dni w tygodniu 606 705 388, 692 715 791 lub napisz: biuro@domtodom.pl
| Powierzchnia użytkowa: | 113,10 m2 |
| Powierzchnia całkowita: | 231,08 m2 |
| Powierzchnia zabudowy: | 116,40 m2 |
| Kubatura: | 991,60 m3 |
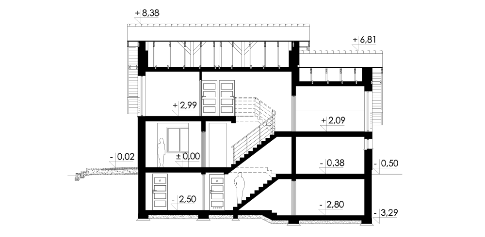
| Wysokość budynku: | 8,88 m |
| Wysokość do okapu: | b.d. |
Dom jednorodzinny, wolnostojący, podpiwniczony z poddaszem użytkowym i garażem jednostanowiskowym. Na układ funkcjonalny składają się salon z jadalnią i wyjściem na taras, kuchnia, trzy pokoje, dwie łazienki, garderoba, garaż jednostanowiskowy, pralnia, suszarnia, cztery pomieszczenia gospodarcze.

Dbamy o najlepszą ofertę dla naszych Inwestorów.

W kilka chwil wybierzesz z nami swój wymarzony dom.

Pomożemy Ci we wszystkich formalnościach, dostosujemy projekt do Twoich indywidualnych potrzeb.

Projekt wymarzonego domu może być u Ciebie nawet następnego dnia po zamówieniu.