Porozmawiaj z nami 7 dni w tygodniu 606 705 388, 692 715 791 lub napisz: biuro@domtodom.pl
| Powierzchnia użytkowa: | 111,10 m2 |
| Powierzchnia całkowita: | 133,50 m2 |
| Powierzchnia zabudowy: | 104,20 m2 |
| Kubatura: | 353,10 m3 |
| Wysokość budynku: | 7,57 m |
| Wysokość do okapu: | b.d. |
Ściany zewnętrzne: gazobeton, ceramika, silikaty
Strop: betonowy gęstożebrowy, wiązary
Schody: dwubiegowe, wachlarzowe
Ścianka kolankowa: brak
Dach: wielospadowy, nachylenie 18°, pokrycie z dachówki, blachodachówki, blachy
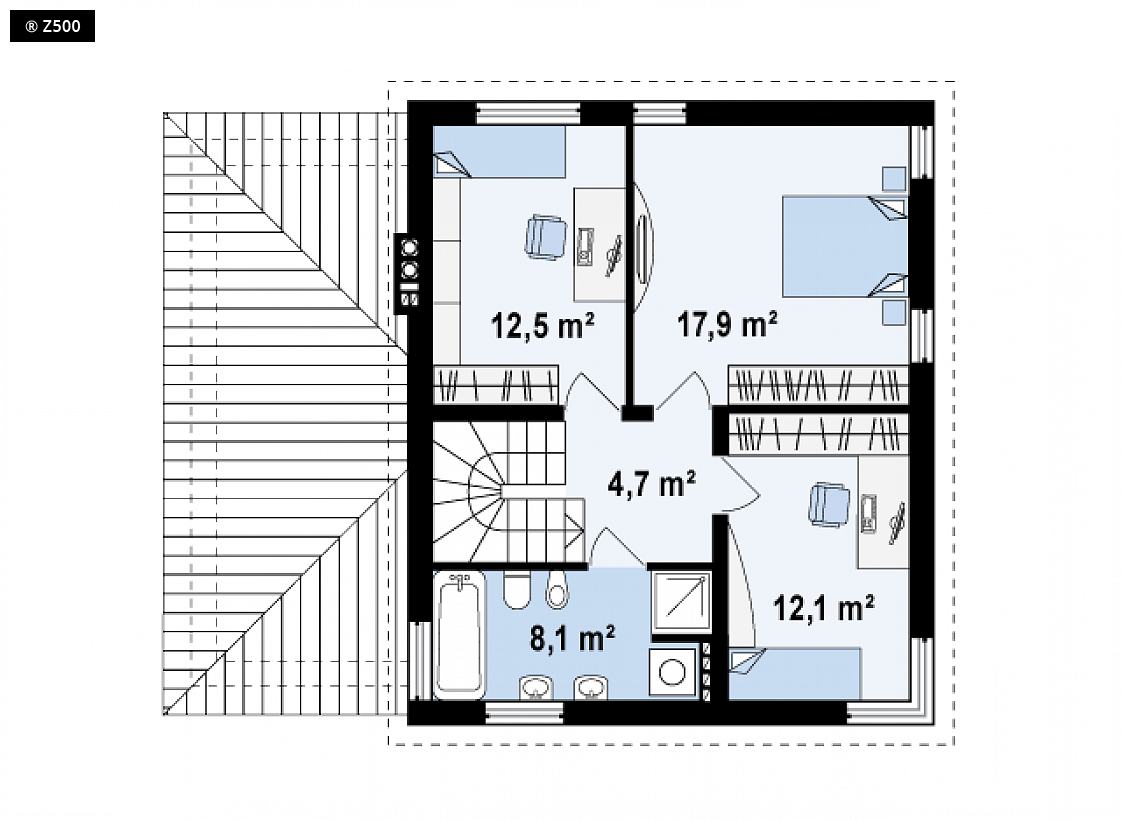
Zx47 to projekt domu o prostej bryle i konstrukcji nawiązującej do klasycznych wzorców modernistycznych. Świetnie nadaje się na działki miejskie. Detale wykończeniowe dodają domowi nowoczesności. Zaprojektowano tu dwie pełne kondygnacje, które dzielą się na dwie strefy. Parter to część dzienna, znajduje się tu przestronny salon, który tworzy otwartą przestrzeń z jadalnią i kuchnią. W lewym skrzydle domu znajduje się jednostanowiskowy garaż z bezpośrednim przejściem do sieni oraz pomieszczenia gospodarczego znajdującego się na jego tyłach. Piętro zaś to część nocna, znajdują się tu trzy wygodne sypialnie, każda z miejscem na dużą szafę, oraz komfortowa łazienka. Hol stanowi łącznik pomiędzy pomieszczeniami. Zx47 to oryginalny projekt dla osób, które cenią sobie wygodę i komfort mieszkania. Niebanalny i oryginalny wygląd domu będzie odzwierciedleniem kreatywnej duszy jego właściciela.

Dbamy o najlepszą ofertę dla naszych Inwestorów.

W kilka chwil wybierzesz z nami swój wymarzony dom.

Pomożemy Ci we wszystkich formalnościach, dostosujemy projekt do Twoich indywidualnych potrzeb.

Projekt wymarzonego domu może być u Ciebie nawet następnego dnia po zamówieniu.